Sensation
Sensation
Overview
- Model Homes
- 4
- 2
- 1,140 Sq Ft
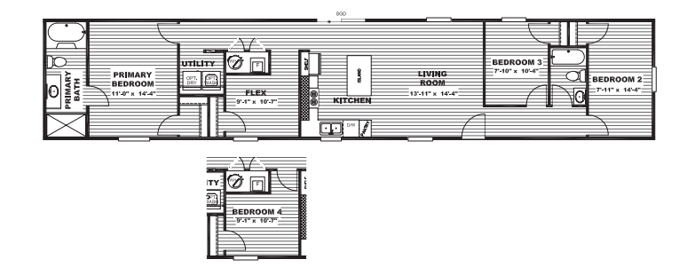
Description
The Sensation is a versatile manufactured home offering 4 bedrooms, 2 bathrooms, and 1,140 square feet of living space, with an optional 4th bedroom configuration.
This model is designed for modern living with an open-concept layout, a stylish kitchen, and a master suite with a private bath. Ideal for families seeking both comfort and affordability.
Address
Open on Google Maps-
Address: 3007 Richlands Hwy, Jacksonville, NC
-
Zip/Postal Code: 28540





