207 Theresa Lane Jacksonville, NC 28540
207 Theresa Lane Jacksonville, NC 28540
Overview
- Turnkey Homes
- 3
- 2
- 1140 Sq Ft
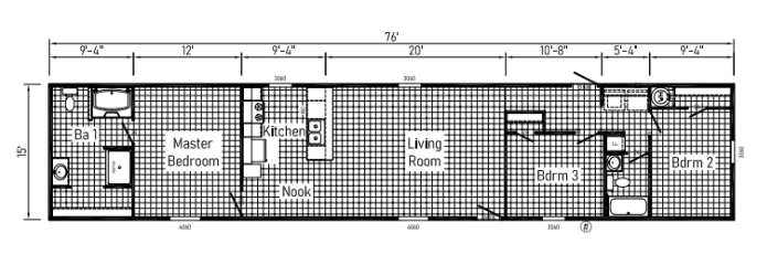
Description
Located within the Twin Lakes Community in Jacksonville, The Phoenix is a spacious manufactured home offering 3 bedrooms, 2 bathrooms, and 1,140 sq. ft. of thoughtfully designed living space. Its open floor plan blends comfort and functionality, featuring a well-equipped kitchen, a cozy living area, and a master suite with an en-suite bathroom. Built for modern living, this home delivers quality construction at an affordable price.
Lot Rent: $375/month
Address
Open on Google Maps-
Address: 207 Theresa Lane
-
Zip/Postal Code: 28540












