320 Becky Lane Jacksonville, NC 28540
320 Becky Lane Jacksonville, NC 28540
Overview
- Turnkey Homes
- 2
- 2
- 990 Sq Ft
Description
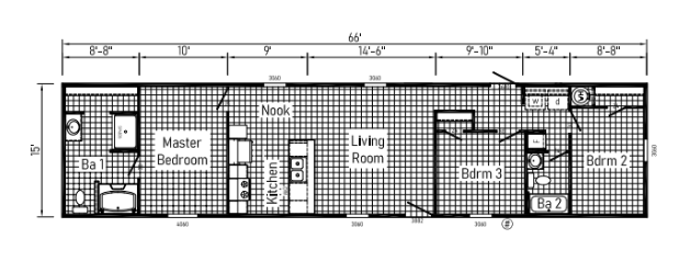
Located within the Twin Lakes Community in Jacksonville, the Cavco Phoenix 16663A is a well-designed manufactured home that combines comfort and efficiency.
This thoughtfully crafted home features a modern open floor plan, seamlessly connecting the kitchen, dining, and living areas for a spacious feel. With quality finishes and ample storage, it balances practicality with style.
Ideal for families or individuals seeking an affordable yet stylish living space, the Phoenix 16663A offers a cozy and inviting environment.
Lot rent: $425/month.
Address
Open on Google Maps-
Address: 320 Becky Lane
-
Zip/Postal Code: 28540















