Marvelous 3
Marvelous 3
Overview
- Model Homes
- 3
- 2
- 1475 Sq Ft
Description
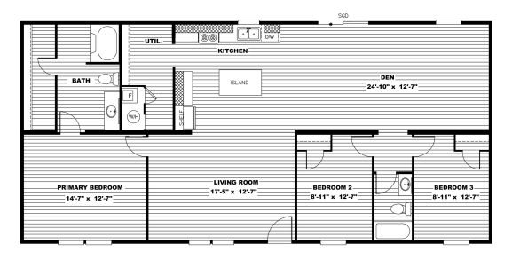
Discover the Marvelous 3, a beautifully designed manufactured home that combines modern aesthetics with practical functionality. This spacious model features a well-appointed open floor plan, ideal for both relaxing and entertaining. The stylish kitchen boasts contemporary appliances and ample counter space, while the adjoining living and dining areas offer a welcoming atmosphere. Enjoy the comfort of three generously sized bedrooms and two full bathrooms, including a private master suite with a luxurious en-suite bath. With energy-efficient features and a range of customizable options, the Marvelous 3 delivers exceptional value and comfort in a home you’ll love.
Address
Open on Google Maps-
Address: 3007 Richlands Hwy, Jacksonville, NC
-
Zip/Postal Code: 28540





