Athens Park Model RV

Overview

  • Model Homes
  • Property Type
  • 2
  • Bedrooms
  • 1
  • Bathroom
  • 398 Sq Ft
  • Area Size

Description

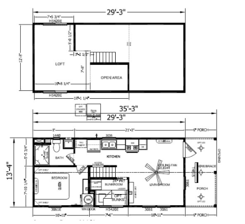
The Champion Park Model 4110L offers a perfect blend of comfort and style in a compact design, making it an ideal option for those looking for a cozy yet functional home. This 399 square foot park model features a spacious open floor plan with a beautifully appointed kitchen, equipped with modern appliances and ample storage. The living area is designed for relaxation, and the well-lit bedroom provides a comfortable retreat. A full bathroom and thoughtful utility spaces enhance convenience, while the stylish exterior adds to its appeal. Ideal for both temporary or long-term living, the 4110L combines practicality with modern amenities.

  • Address: 3007 Richlands Hwy, Jacksonville, NC
  • Zip/Postal Code: 28540

Floor Plans

360° Virtual Tour

Schedule a Tour


Similar Listings

Compare listings

Compare