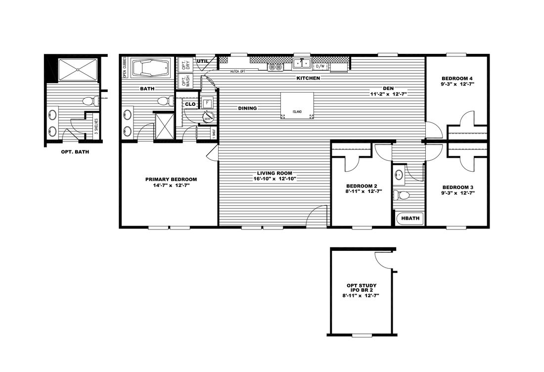
Ultra Excel Ultra Pro 4BR2856

Overview

  • Model Homes
  • Property Type
  • 4
  • Bedrooms
  • 2
  • Bathrooms
  • 1,474 Sq Ft
  • Area Size

Description

Discover the perfect blend of style and functionality with the Ultra Pro 4BR2856 manufactured home from Oxford. This spacious model features a smart, open floor plan with four bedrooms and two bathrooms, ideal for comfortable living. The modern kitchen comes equipped with high-quality appliances, and the expansive living area offers a welcoming space for family and guests. The master suite includes a private en-suite bathroom for added convenience. Crafted with top-notch materials for energy efficiency and durability, the Ultra Pro 4BR2856 is an excellent choice for affordable, high-quality manufactured housing.

  • Address: 3007 Richlands Hwy, Jacksonville, NC
  • Zip/Postal Code: 28540

Floor Plans

360° Virtual Tour

Schedule a Tour


Similar Listings

Compare listings

Compare