Ultra Excel Ultra Pro 3BR2856

Overview

  • Model Homes
  • Property Type
  • 3
  • Bedrooms
  • 2
  • Bathrooms
  • 1,474 Sq Ft
  • Area Size

Description

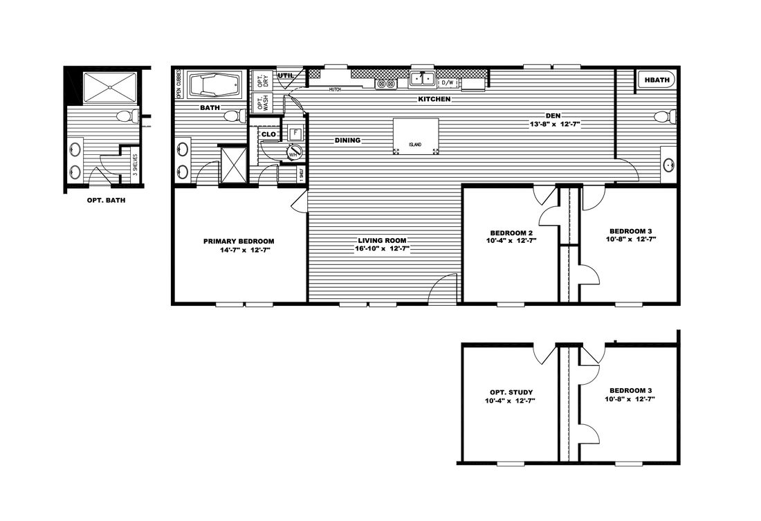
The Oxford Ultra Pro 3BR2856 is a spacious 3 bedroom, 2 bathroom manufactured home designed for modern living. With 1474 square feet of open floor space, this home features a large kitchen island, ideal for entertaining or family gatherings. The master suite boasts a luxurious bathroom with a deep soaker tub and separate shower. Built with energy efficiency in mind, the Oxford Ultra Pro 3BR2856 offers affordable comfort without sacrificing style. Perfect for families or those seeking a balance between practicality and design, this home is a great investment in both quality and convenience.

  • Address: 3007 Richlands Hwy, Jacksonville, NC
  • Zip/Postal Code: 28540

Floor Plans

360° Virtual Tour

Schedule a Tour


Similar Listings

Compare listings

Compare