Thrill
Thrill
Overview
- Model Homes
- 3
- 2
- 1,475 Sq Ft
Description
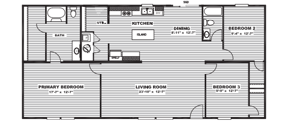
Discover the Thrill, a beautifully designed manufactured home that combines contemporary style with exceptional functionality.
Featuring a spacious open floor plan, this home offers three generously sized bedrooms and two well-appointed bathrooms.
The heart of the home is its modern kitchen, complete with sleek appliances, ample counter space, and a central island perfect for entertaining.
The cozy living area and elegant dining space seamlessly connect, creating an inviting environment for both relaxation and gatherings.
The Thrill is designed to offer comfort and style for today’s lifestyle.
Address
Open on Google Maps-
Address: 3007 Richlands Hwy, Jacksonville, NC
-
Zip/Postal Code: 28540



