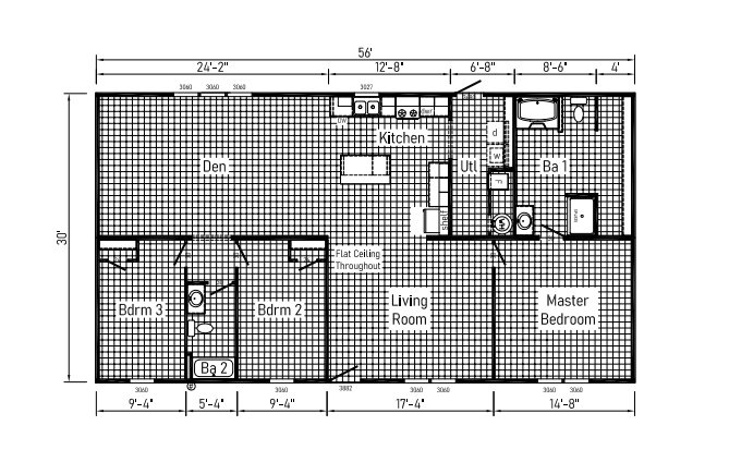
Phoenix PX32563A

Overview

  • Model Homes
  • Property Type
  • 3 or 4
  • Bedrooms
  • 2
  • Bathrooms
  • 1,680 Sq Ft
  • Area Size

Description

Discover the elegance and comfort of the Phoenix 32563A manufactured home by Cavco, designed for modern living with a touch of luxury.

This spacious home features a stunning open floor plan, seamlessly connecting the living, dining, and kitchen areas, perfect for entertaining or family gatherings.

Enjoy the abundance of natural light from large windows, along with high-quality finishes and energy-efficient appliances that enhance both style and sustainability.

The Phoenix 32563A is ideal for families seeking a stylish, affordable, and efficient home.

  • Address: 3007 Richlands Hwy, Jacksonville, NC
  • Zip/Postal Code: 28540

Floor Plans

360° Virtual Tour

Schedule a Tour


Similar Listings

Compare listings

Compare