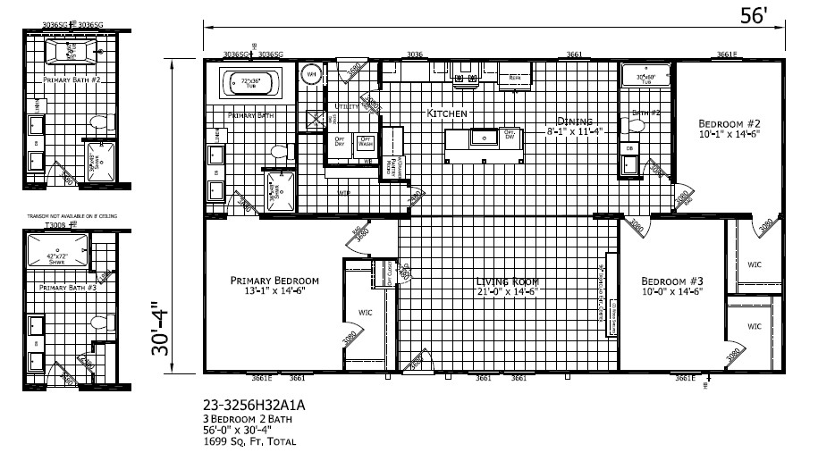
Ironclad3256-03

Overview

  • Model Homes
  • Property Type
  • 3
  • Bedrooms
  • 2
  • Bathrooms
  • 1,699 Sq Ft
  • Area Size

Description

The Ironclad 3256-03 is a 1,699 sq. ft. manufactured home from Champion Homes, offering 3 bedrooms and 2 bathrooms. This multi-section home is designed with customizable options, including a freestanding bath tub, fireplace, and sliding glass door in the dining area. Built to federal HUD codes, it combines quality construction with modern amenities. Ideal for those seeking a spacious and flexible living space, this home is perfect for families or individuals who value both comfort and style.

  • Address: 3007 Richlands Hwy, Jacksonville, NC
  • Zip/Postal Code: 28540

Floor Plans

Schedule a Tour


Similar Listings

Compare listings

Compare