Athens PM 528L

Overview

  • Model Homes
  • Property Type
  • 1
  • Bedroom
  • 1
  • Bathroom
  • 399 Sq Ft
  • Area Size

Description

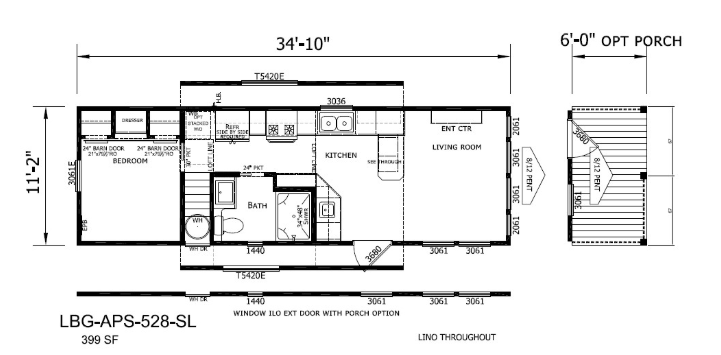
The Champion Park Model 528L offers a cozy and functional living space, perfect for those seeking a charming, compact home. This 399 sq. ft. model features an inviting open floor plan with a spacious living area that seamlessly connects to a well-appointed kitchen, complete with modern appliances and ample cabinetry. The home includes a cozy bedroom, a full bath, and a beautiful front porch, perfect for enjoying the outdoors. With its thoughtfully designed layout and stylish finishes, the Park Model 528L is ideal for seasonal living, weekend getaways, or even as a guest house.

  • Address: 3007 Richlands Hwy, Jacksonville, NC
  • Zip/Postal Code: 28540

Floor Plans

360° Virtual Tour

Schedule a Tour


Similar Listings

Compare listings

Compare